RIF.529 - Casa singola

Descrizione Immobile

65.000 €

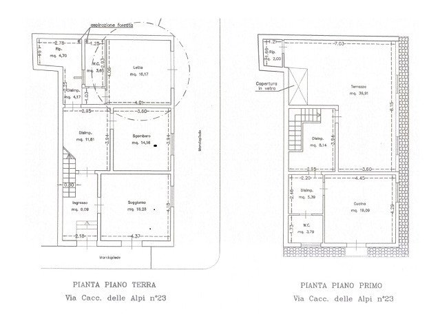
Casa indipendente con posizione angolare ubicata in zona semi centrale, composta a piano terra da tre vani oltre angolo cottura, servizi, e garage di mq 16, a primo piano disimpegno, ampia camera da letto, bagno, oltre terrazzo di mq 30. L’immobile necessita di interventi di ristrutturazione. Prezzo € 65.000

Indirizzo Via XX Settembre
Cittá Vittoria
Stato IT
Provincia Ragusa
Postal code 97019
Quartiere

Dettagli Immobile

Ultimo aggiornamento 3 settimane fa
Condizioni da ristrutturare
Locali 5
Garage si
Piano PIANO TERRA E PRIMO
Riscaldamento no
Terrazza si
Classe energetica G-175.21 KWH/ANNUO
Download datasheet